宅地分譲

徳島市南矢三 C号地・E号地

販売価格1208万円・1315万円

徳島市南矢三 C号地・E号地 C号地
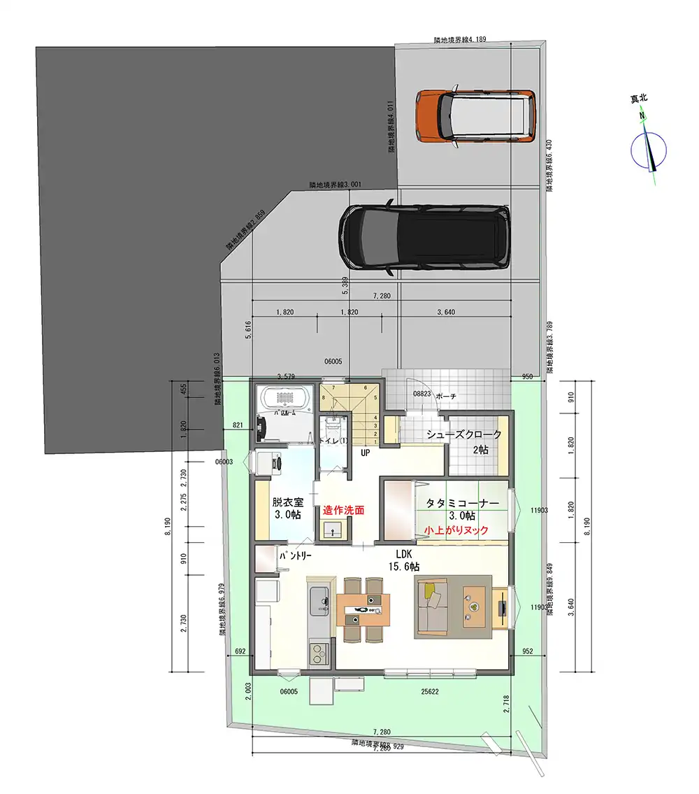
【C号地】
駐車場+プライベートガーデン
回遊動線も加え、生活しやすさ◎
建物面積:114.24㎡・建物価格:2040万円
【C号地】
2階にも造作洗面を設置し、ホテルライクな雰囲気に。
ファミクロ完備で収納力◎!
建物面積:114.24㎡・建物価格:2040万円
徳島市南矢三 C号地・E号地 E号地
【E号地】
南側を広々確保。
東南からの心地良い日差しを計画的に採用。
建物面積:102.04㎡・建物価格:1870万円
【E号地】
ファミクロ完備で収納量◎
建物面積:102.04㎡・建物価格:1870万円
建物プラン例(C号地)
【外観】洗練された都会的なデザインが目を引く住まい。ゆとりのカースペースは来客時にも安心感を与えます。
建物プラン例(C号地)
【外観】深い色合いの外壁と水平ラインが美しい、モダンな印象の住まい。落ち着いた佇まいを演出します。
建物プラン例(E号地)
【外観】異なる素材の組み合わせが個性を放つ、スタイリッシュな外観。大きな窓から光を取り込み、明るく開放的な暮らしを予感させます。
建物プラン例(E号地)
【外観】シャープな片流れ屋根が特徴的な、シンプルながらも存在感のあるデザイン。周囲の自然と調和し、穏やかな日常を演出します。
【C号地】
小上がりヌックで落ち着いた空間を演出。
建物面積:114.24㎡・建物価格:2040万円
前面道路は5m!
切り返しも可能な転回あり!
新築が立ち並ぶ分譲地となります!
【F号地・分譲地進入口】
現在、分譲モデルハウスを計画中!
詳しくは当社徳島店までお問合せください。
前面道路も広々確保◎
【E号地】
東側道路となるため、午前中の日当たりが良好です!
【C号地】
分譲地突き当りの区画となります。
転回もあるため、駐車のしやすさ◎
南側にはプライベートガーデンを設計する事も可能な敷地形状です!

おすすめポイント

田宮街沿いの商業施設、多数あり!生活しやすさ抜群の人気エリア
◆ 43坪以上!駐車場やお庭もバッチリ計画できる「ちょうどいい」サイズ感
◆ 教育施設(保育園、幼稚園、千松小学校、城西中学校など)が充実
◆ 閑静な住宅街で落ち着いた雰囲気  
◆ スーパーやコンビニが徒歩圏内
◆ 病院やクリニックが近隣にあり
◆ 交通アクセス良好 JR佐古駅まで1100m!

\まずはお気軽にご相談ください/
「詳しい話を聞いてみたい」「実際に土地を見てみたい」など、 少しでもご興味がございましたら、是非お問い合わせください。モデルハウスも見学可能です!
電話が苦手な方も安心。ネット予約なら簡単操作で完了します!【お問い合わせフォーム】より、お気軽にお問い合わせください。

所在地

徳島県徳島市南矢三町1-312-8、312-10他

物件概要

物件(分譲)名
徳島市南矢三 C号地・E号地
販売価格
1208万円・1315万円
所在地
徳島県徳島市南矢三町1-312-8、312-10他
交通
JR徳島線「佐古」徒歩12分~13分
徳島バス「矢三東」徒歩4分~5分
小・中学校
千松小学校
城西中学校
土地面積
142.62㎡・155.17㎡(43.14坪・46.93坪)
設備概要
四国電力、LPG
区画数
販売区画数2区画 総区画数6区画
前面道路
道路幅:5m、アスファルト舗装
飲水・排水
公営水道、浄化槽
宅建業法33条に規定する許可番号
完成済み
用途地域
1種住居
地目
宅地
土地権利
所有権
建ぺい率
60%
容積率
200%
私道負担
引渡日
相談
建築条件付
建築条件有り
取引態様
売主

情報更新日:2026/05/12  次回更新予定日:2026/05/26

お問い合わせ

お気軽にご連絡ください。

住まいづくり館 徳島

088-679-6700
受付時間:
10:00~18:30
住所:
徳島県徳島市西新浜町二丁目5番68号

CONTACTお問い合わせ

ご相談やご質問等がございましたら、
お気軽に下記フォームよりお問い合わせください。

    お名前を入力してください。

    フリガナを入力してください。

    電話番号を入力してください。

    メールアドレスを入力してください。

    - ※郵便番号入力で住所の一部が自動で入力されます。

    郵便番号を入力してください。

    住所を入力してください。

    番地・マンション名を入力してください。

    ご年齢を選択してください。

    選択してください。

    同意する場合は選択してください。

    宅地・建売分譲一覧に戻る