建売分譲

和歌山市府中3号棟

販売価格3280万円

(3号棟)完成予想図
現地(2025年10月)撮影
檜は腐りにくく、湿気に強いため、長期間の使用に耐える木材です。
檜には「ヒノキチオール」などの天然成分が含まれ、シロアリや腐朽菌に強い性質があります。
現地(2025年10月)撮影
秀光ビルド和歌山店まで6600m モデルハウスあります。
現地案内図
耐震等級3は、住宅の耐震性能を示す最高ランクであり、建築基準法の1.5倍の地震力に耐えられる構造を持つ住宅です。
耐震性を高めることにより、家族の命を守るだけでなく、精神的な安心感も得られます。
(3号棟)、価格3280万円、4LDK、土地面積140.33㎡、建物面積107.64㎡
現地(2025年10月)撮影
厚い合板を梁に直接貼り付けることで、床全体が「面構造」となり、水平方向の力に強く、建物の変形を防止。
厚い合板により、歩行時の不快な沈み込みや揺れを軽減し火災時は火の進行を遅らせ広がりを抑える効果があります。
熱交換器加熱除菌:熱交換器を55℃以上に加熱し、カビや細菌を除菌。
内部クリーン運転:運転停止後に内部を乾燥させ、カビの発生を抑制。
フィルター自動おそうじ:フィルターに付着したホコリを自動で除去。
建物の耐震性を向上
地震の揺れによって柱や梁の接合部が緩んだり抜けたりするのを防ぎます。
接合部を強固にすることで、木造住宅の弱点、建物の変形や損傷を抑え、長期的な耐久性が向上するため倒壊リスクを低減します。
(3号棟)完成予想図
LED照明は白熱電球の約1/8、蛍光灯の約1/2の電力で同じ明るさを実現できるため節約効果が期待できます。
高額なのがデメリットですが秀光ビルドの建物には居室含む全室LED照明が標準設置されています。
床下の通気性が向上
基礎の外周全体から換気できるため、換気ムラがなく湿気がこもりにくい。
また基礎に穴(換気口)を開ける必要がないため、コンクリートの強度が損なわれないため耐震性の向上にもつながります。
(3号棟)完成予想図

おすすめポイント

秀光ビルドの家
陽当り抜群の住まい。週末は現地見学会へ!

【物件の特徴】
・角地ならではの開放感と、プライバシーを両立した設計
・オール電化仕様で火を使わず安心、光熱費もスマートに管理
・入居してすぐに快適な生活が送れる、充実のフル装備住宅


【周辺環境/アクセス】
・JR阪和線「紀伊」駅エリアで、教育施設や医療機関が点在し、長く安心して暮らせる地域
現地見学は「見学予約する」をチェック!現地で実際の快適さをご体感ください。

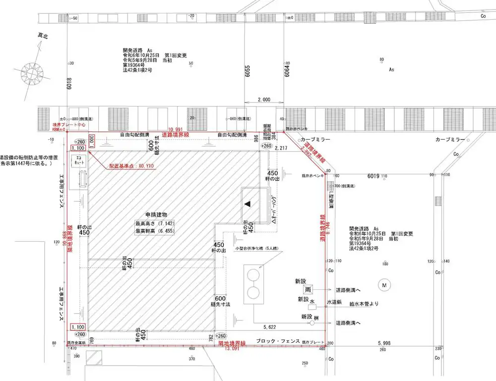
所在地

和歌山県和歌山市府中552-26、552-31、555-2

物件概要

物件(分譲)名
和歌山市府中3号棟
販売価格
3280万円
所在地
和歌山県和歌山市府中552-26、552-31、555-2
交通
JR阪和線「紀伊」徒歩28分
小・中学校
和歌山市立紀伊小学校
和歌山市立紀伊中学校
土地面積
140.33㎡(42.44坪)(登記)
建物面積(延床)
107.64㎡(32.56坪)(登記)
構造
木造2階建
間取り
4LDK
設備概要
関西電力
区画数
販売区画数1区画 総区画数2区画
前面道路
道路幅:6m、アスファルト舗装
飲水・排水
公営水道、浄化槽
用途地域
1種低層
地目
宅地
土地権利
所有権
建ぺい率
-
容積率
-
私道負担
工事完了予定年月(造成・開発等)
2026年6月予定
引渡日
2026年7月中旬予定
特記事項
景観法による規制有
取引態様
売主
建築確認番号
R07確認建築PLN橿本0526号

情報更新日:2026/04/30  次回更新予定日:2026/05/14

お問い合わせ

お気軽にご連絡ください。

秀光ビルド 大阪駅前店

06-7739-6600
受付時間:
10:00〜18:30
住所:
大阪府大阪市北区梅田1丁目2番2-100号 大阪駅前第2ビル1階27号室

CONTACTお問い合わせ

ご相談やご質問等がございましたら、
お気軽に下記フォームよりお問い合わせください。

    お名前を入力してください。

    フリガナを入力してください。

    電話番号を入力してください。

    メールアドレスを入力してください。

    - ※郵便番号入力で住所の一部が自動で入力されます。

    郵便番号を入力してください。

    住所を入力してください。

    番地・マンション名を入力してください。

    ご年齢を選択してください。

    選択してください。

    同意する場合は選択してください。

    宅地・建売分譲一覧に戻る