宅地分譲

和歌山市有家

販売価格1630万円

現地(2025年9月)撮影
現地(2025年9月)撮影
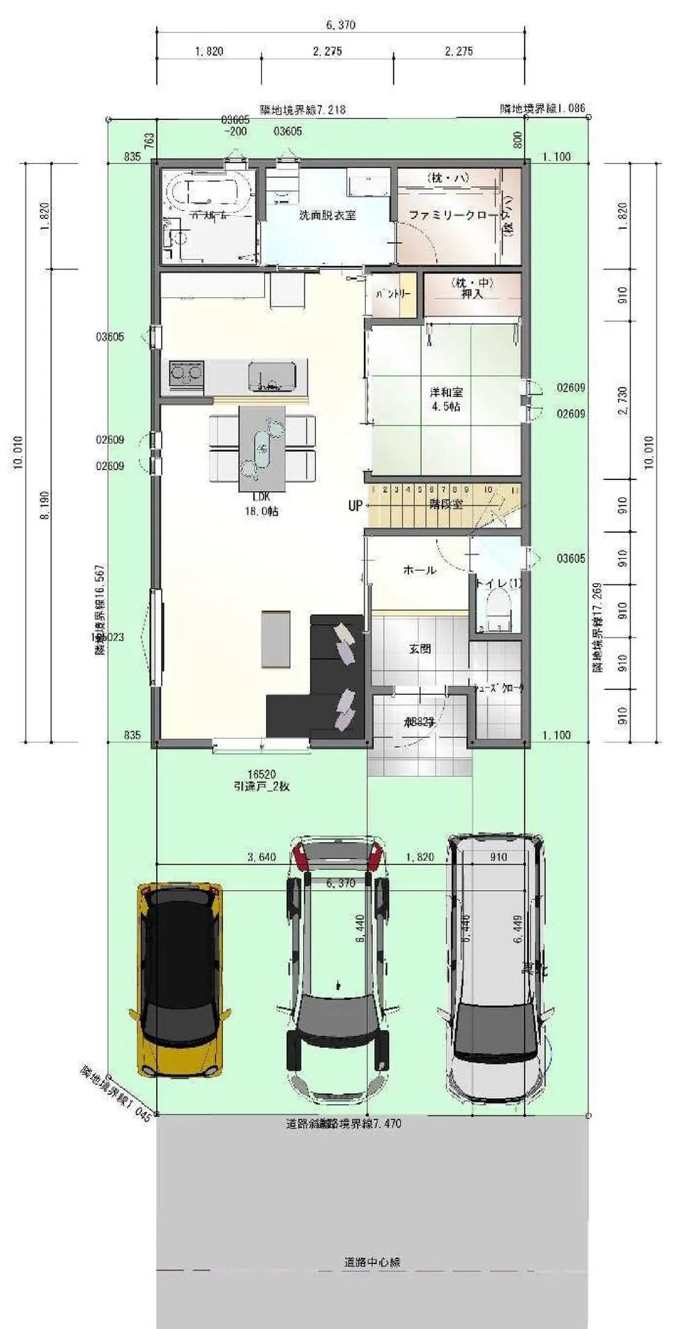
建物プラン例、土地価格1630万円、土地面積142.85㎡、建物価格1700万円、建物面積98㎡ 区画参考図面
土地価格1630万円、土地面積142.85㎡ 1区画販売
建物プラン例
秀光ビルド 和歌山店まで12000m 土地、建物の打合せさせて頂きます。店舗までは現地から車で約22分です。
有家249-22
和歌山店 モデルハウス
熱交換器加熱除菌:熱交換器を55℃以上に加熱し、カビや細菌を除菌。
内部クリーン運転:運転停止後に内部を乾燥させ、カビの発生を抑制。
フィルター自動おそうじ:フィルターに付着したホコリを自動で除去。
建物プラン例
・開放感・高級感がある
空間が広く感じられ、圧迫感が少ない
・採光・通気性が良い
高い位置に窓を設けることで、自然光を多く取り入れられる。
空気の循環が良くなり風通しも向上
・インテリアの自由度が高い
建物プラン例 外観イメージパース
LED照明は白熱電球の約1/8、蛍光灯の約1/2の電力で同じ明るさを実現できるため節約効果が期待できます。
高額なのがデメリットですが秀光ビルドの建物には居室含む全室LED照明が標準設置されています。
TVモニター付きインターホンは、来訪者の顔を映像で確認できるインターホンシステムで、誰が来たのかを映像で確認できるため、見知らぬ訪問者への対応も安心。
秀光ビルドでは引違い窓すべてにカーテンレールを標準設置しています。
住宅基礎部分の保護する塗材。
高耐候性、低汚染性、クラック追従性に優れてます。
耐久性アップ、汚れ防止、ひび割れ防止が主な効果となり地面からの水分吸収を防ぐ効果があり、基礎部分の染みや変色を防止します
檜は腐りにくく、湿気に強いため、長期間の使用に耐える木材です。
檜には「ヒノキチオール」などの天然成分が含まれ、シロアリや腐朽菌に強い性質があります。
不同沈下の防止
荷重を地盤全体に均等に分散するため、沈下するリスクが低い。
湿気・シロアリ対策に優れる
床下全面を覆うことで、湿気を遮断。
シロアリの侵入経路を減らし、木材の腐食やカビの発生も抑制。
床下の通気性が向上
基礎の外周全体から換気できるため、換気ムラがなく湿気がこもりにくい。
また基礎に穴(換気口)を開ける必要がないため、コンクリートの強度が損なわれないため耐震性の向上にもつながります。
光触媒(酸化チタン)の力で、太陽光(紫外線)に反応し、外壁に付着した汚れを分解。
分解された汚れは、雨水で自然に洗い流されるため、外壁が常にきれいな状態を保てます。
陶器瓦は50年以上の耐久年数を誇り、金属やスレート瓦と比べ経年劣化が少ない屋根材です。
厚みと空気層があるため、断熱・遮音性能にも優れています。
安心も、品質も、価格も、
お客様にも、自分にも、商品にも、まっすぐ正直な家づくりを
お約束します。
セルフクリーニングする40年品質の外壁材と雨の力で汚れを落とすキレイが長持ちする外壁材KMEW「親水コート」を採用。
お引き渡し後のサポートサービスも万全。(1)定期点検(2・5・10年目)。住宅を長持ちさせるには、定期的なメンテナンスと不具合の早期発見が重要です。お引き渡し後3回に渡り定期点検に伺い、住宅を見守ります。
断熱等級5。ZEH基準を標準。
高断熱仕様で、夏は涼しく、冬は暖かい年中快適な室内環境を叶えます。
住宅会社が行う通常の検査に加え、全12回の住宅品質検査を独自に行っています。特に重要な「配筋」「金物」「防水」部分は、信頼と安全に直結する部分だから「第三者機関と自社検査員によるダブル検査」を徹底。
耐震等級3は、住宅の耐震性能を示す最高ランクであり、建築基準法の1.5倍の地震力に耐えられる構造を持つ住宅です。
耐震性を高めることにより、家族の命を守るだけでなく、精神的な安心感も得られます。
長期優良住宅仕様

おすすめポイント

納得価格で注文住宅!
自由設計で理想の家を!プラン相談・現地見学受付中

【物件の特徴】
・和歌山での施工実績が豊富な秀光ビルドにお任せ
・自分好みの内装や外観が選べる、自由設計の楽しさ

【周辺環境/アクセス】
・永穂の穏やかな住宅街。のんびりした暮らしに最適
実際の土地の広さを見て、どんな間取りができるかお話ししませんか?

所在地

和歌山県和歌山市有家249-22

物件概要

物件(分譲)名
和歌山市有家
販売価格
1630万円
所在地
和歌山県和歌山市有家249-22
交通
JR阪和線「和歌山」徒歩18分
土地面積
142.85㎡(43.21坪)(登記)
設備概要
オール電化
区画数
販売区画数1区画 総区画数1区画
前面道路
南5.4m幅(接道幅7.4m)
飲水・排水
公営水道、個別浄化槽
宅建業法33条に規定する許可番号
完成済み
用途地域
1種中高
地目
宅地
土地権利
所有権
建ぺい率
60%
容積率
200%
私道負担
引渡日
即引渡し可
建築条件付
建築条件有り
特記事項
景観法による規制有、宅地造成工事規制区域
取引態様
売主

情報更新日:2026/05/13  次回更新予定日:2026/05/27

お問い合わせ

お気軽にご連絡ください。

秀光ビルド 大阪駅前店

06-7739-6600
受付時間:
10:00〜18:30
住所:
大阪府大阪市北区梅田1丁目2番2-100号 大阪駅前第2ビル1階27号室

CONTACTお問い合わせ

ご相談やご質問等がございましたら、
お気軽に下記フォームよりお問い合わせください。

    お名前を入力してください。

    フリガナを入力してください。

    電話番号を入力してください。

    メールアドレスを入力してください。

    - ※郵便番号入力で住所の一部が自動で入力されます。

    郵便番号を入力してください。

    住所を入力してください。

    番地・マンション名を入力してください。

    ご年齢を選択してください。

    選択してください。

    同意する場合は選択してください。

    宅地・建売分譲一覧に戻る