建売分譲

和歌山市中之島建売分譲

販売価格成約済み

完成予想図
完成予想図
カップボード
浴室
キッチン
洗面台・洗面所
秀光ビルド和歌山店まで11600m モデルハウスあります。
完成予想図
その他
完成予想図
地震対策として非常に効果的で、耐震構造と組み合わせることで住宅の安全性と快適性を大きく向上させます
ダンパーが地震の振動エネルギーを吸収し建物の揺れを抑制
建物の変形や損傷を防ぎ、構造体の耐久性を維持
耐震等級3は、住宅の耐震性能を示す最高ランクであり、建築基準法の1.5倍の地震力に耐えられる構造を持つ住宅です。
耐震性を高めることにより、家族の命を守るだけでなく、精神的な安心感も得られます。
LED照明は白熱電球の約1/8、蛍光灯の約1/2の電力で同じ明るさを実現できるため節約効果が期待できます。
高額なのがデメリットですが秀光ビルドの建物には居室含む全室LED照明が標準設置されています。
液状の断熱材を壁や天井に直接吹き付けて発泡・硬化させることで、隙間なく断熱層を形成します。断熱性能、気密性、防音効果、結露カビの抑制、長期的な性能維持に優れた断熱材を採用しています。
光触媒(酸化チタン)の力で、太陽光(紫外線)に反応し、外壁に付着した汚れを分解。
分解された汚れは、雨水で自然に洗い流されるため、外壁が常にきれいな状態を保てます。

おすすめポイント

モデルハウスをご内覧可能です
案内会実施中!

フラット35Sに対応、高気密高断熱住宅、地盤調査済、年内引渡可、2沿線以上利用可、土地50坪以上、LDK18畳以上、省エネ給湯器、システムキッチン、浴室乾燥機、全居室収納、前道6m以上、タタミコーナー、整形地、シャワー付洗面化粧台、バリアフリー、トイレ2ヶ所、浴室1坪以上、2階建、温水洗浄便座、床下収納、TVモニタ付インターホン、節水型トイレ、ウォークインクローゼット、天井高2.5m以上、IHクッキングヒーター、全居室複層ガラスか複層サッシ、シューズインクローク、小学校 徒歩10分以内、平坦地、食器洗乾燥機、オール電化、浄水器、スマートキー

物件概要

物件(分譲)名
和歌山市中之島建売分譲
販売価格
成約済み
交通
JR紀勢本線「紀和」徒歩6分
JR阪和線「紀伊中ノ島」徒歩11分
JR阪和線「和歌山」徒歩26分
小・中学校
和歌山市立中之島小学校
和歌山市立紀之川中学校
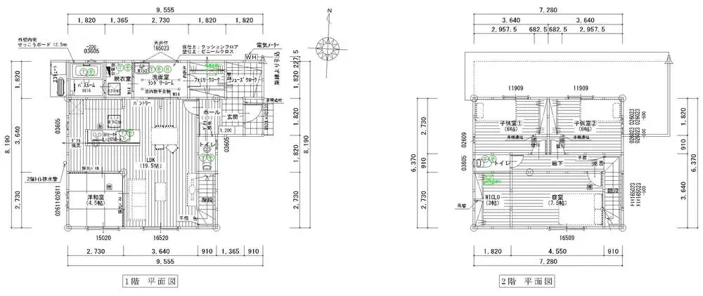
土地面積
165.29㎡(登記)
建物面積(延床)
112.61㎡(登記)
構造
木造2階建
間取り
4LDK
設備概要
オール電化
区画数
販売区画数1区画 総区画数1区画
前面道路
東6m幅(接道幅11.7m)
飲水・排水
公営水道、個別浄化槽
用途地域
工業
地目
-
土地権利
所有権
建ぺい率
60%
容積率
200%
私道負担
工事完了予定年月(造成・開発等)
2026年5月
引渡日
2026年6月予定
特記事項
景観法による規制有
取引態様
売主
駐車場
カースペース

情報更新日:2026/05/13  次回更新予定日:2026/05/27

お問い合わせ

お気軽にご連絡ください。

秀光ビルド 大阪駅前店

06-7739-6600
受付時間:
10:00〜18:30
住所:
大阪府大阪市北区梅田1丁目2番2-100号 大阪駅前第2ビル1階27号室

CONTACTお問い合わせ

ご相談やご質問等がございましたら、
お気軽に下記フォームよりお問い合わせください。

    お名前を入力してください。

    フリガナを入力してください。

    電話番号を入力してください。

    メールアドレスを入力してください。

    - ※郵便番号入力で住所の一部が自動で入力されます。

    郵便番号を入力してください。

    住所を入力してください。

    番地・マンション名を入力してください。

    ご年齢を選択してください。

    選択してください。

    同意する場合は選択してください。

    宅地・建売分譲一覧に戻る