宅地分譲

堺市東区日置荘西町7丁建築条件付き土地

販売価格1480万円

現地(2026年1月)撮影
完成予想パース
内観パース
土地価格1480万円、土地面積99㎡ 1区画販売
現地(2026年1月)撮影
現地(2026年1月)撮影
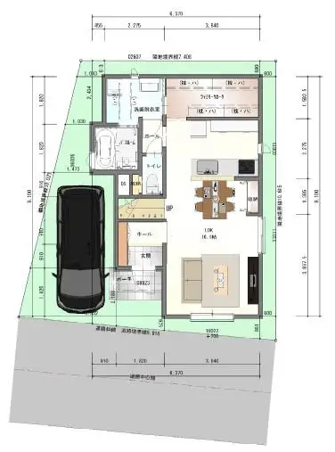
建物プラン例、土地価格1480万円、土地面積99㎡、建物価格1700万円、建物面積98㎡ 敷地配置図
秀光ビルド 堺店まで3800m 土地、建物の打合せさせて頂きます。店舗までは現地から車で約15分です。
現地案内図
LED照明は白熱電球の約1/8、蛍光灯の約1/2の電力で同じ明るさを実現できるため節約効果が期待できます。
高額なのがデメリットですが秀光ビルドの建物には居室含む全室LED照明が標準設置されています。
耐震等級3は、住宅の耐震性能を示す最高ランクであり、建築基準法の1.5倍の地震力に耐えられる構造を持つ住宅です。
耐震性を高めることにより、家族の命を守るだけでなく、精神的な安心感も得られます。
建物プラン例、1階平面図
光触媒(酸化チタン)の力で、太陽光(紫外線)に反応し、外壁に付着した汚れを分解。
分解された汚れは、雨水で自然に洗い流されるため、外壁が常にきれいな状態を保てます。
建物プラン例、2階平面図
美容と節水を両立!ウルトラファインバブル(直径0.001mm未満)とマイクロバブル(直径0.01から0.1mm)の2種類の微細な泡を生成。
毛穴の奥の汚れや皮脂をやさしく洗浄し、肌や髪に負担をかけずに清潔に保ちます。
建物プラン例、外観パース(夜)
液状の断熱材を壁や天井に直接吹き付けて発泡・硬化させることで、隙間なく断熱層を形成します。断熱性能、気密性、防音効果、結露カビの抑制、長期的な性能維持に優れた断熱材を採用しています。
熱交換器加熱除菌:熱交換器を55℃以上に加熱し、カビや細菌を除菌。
内部クリーン運転:運転停止後に内部を乾燥させ、カビの発生を抑制。
フィルター自動おそうじ:フィルターに付着したホコリを自動で除去。
ゼロエミッションに備え
電気自動車(EV)やプラグインハイブリッド車(PHEV)を自宅で充電するための専用コンセントを1ヶ所設置致します。
スマートエントリー対応の玄関ドア用電気錠システムです。スマートフォンやリモコン、カードキーなどを使って、非接触で玄関の施錠・解錠ができるのが最大の特徴です。
TVモニター付きインターホンは、来訪者の顔を映像で確認できるインターホンシステムで、誰が来たのかを映像で確認できるため、見知らぬ訪問者への対応も安心。
安心も、品質も、価格も、
お客様にも、自分にも、商品にも、まっすぐ正直な家づくりを
お約束します。
大地震に備える最高等級の家。
「耐震等級」とは、地震に対する建物の強さを表す指標です。
秀光ビルドの建物は、最高等級である「耐震等級3」を標準仕様としています。
お引き渡し後のサポートサービスも万全。(1)定期点検(2・5・10年目)。住宅を長持ちさせるには、定期的なメンテナンスと不具合の早期発見が重要です。お引き渡し後3回に渡り定期点検に伺い、住宅を見守ります。
住宅会社が行う通常の検査に加え、全12回の住宅品質検査を独自に行っています。特に重要な「配筋」「金物」「防水」部分は、信頼と安全に直結する部分だから「第三者機関と自社検査員によるダブル検査」を徹底
秀光ビルドの建物はすべて瑕疵担保責任保険付き。標準10年保証です。※有償で10年ごとに最長30年まで延長可能。

おすすめポイント

秀光ビルドの家
初芝駅徒歩圏
自由設計で理想の家を!プラン相談・見学受付中

【物件の特徴】
秀光ビルドの高品質施工×自由設計・予算が立てやすい

【周辺環境/アクセス】
・南海高野線「初芝」駅徒歩圏で通勤便利

理想の間取りの相談もぜひ一度お話ししませんか?

所在地

大阪府堺市東区日置荘西町7-684-1

物件概要

物件(分譲)名
堺市東区日置荘西町7丁建築条件付き土地
販売価格
1480万円
所在地
大阪府堺市東区日置荘西町7-684-1
交通
南海高野線「初芝」徒歩15分
南海高野線「萩原天神」徒歩15分
土地面積
99㎡(29.94坪)(登記)
設備概要
都市ガス
区画数
販売区画数1区画 総区画数1区画
前面道路
南2.9m幅(接道幅10m)
飲水・排水
公営水道、本下水
宅建業法33条に規定する許可番号
完成済み
用途地域
準工業
地目
宅地
土地権利
所有権
建ぺい率
60%
容積率
200%
私道負担
引渡日
即引渡し可
建築条件付
建築条件有り
特記事項
セットバック:要5.5㎡、準防火地域、景観地区
取引態様
売主

情報更新日:2026/05/04  次回更新予定日:2026/05/18

お問い合わせ

お気軽にご連絡ください。

秀光ビルド 大阪駅前店

06-7739-6600
受付時間:
10:00〜18:30
住所:
大阪府大阪市北区梅田1丁目2番2-100号 大阪駅前第2ビル1階27号室

CONTACTお問い合わせ

ご相談やご質問等がございましたら、
お気軽に下記フォームよりお問い合わせください。

    お名前を入力してください。

    フリガナを入力してください。

    電話番号を入力してください。

    メールアドレスを入力してください。

    - ※郵便番号入力で住所の一部が自動で入力されます。

    郵便番号を入力してください。

    住所を入力してください。

    番地・マンション名を入力してください。

    ご年齢を選択してください。

    選択してください。

    同意する場合は選択してください。

    宅地・建売分譲一覧に戻る