宅地分譲

掛川市上西郷分譲 土地のみ

販売価格1450万円

現地土地写真
前面道路含む現地写真
土地価格1450万円、土地面積207.56㎡
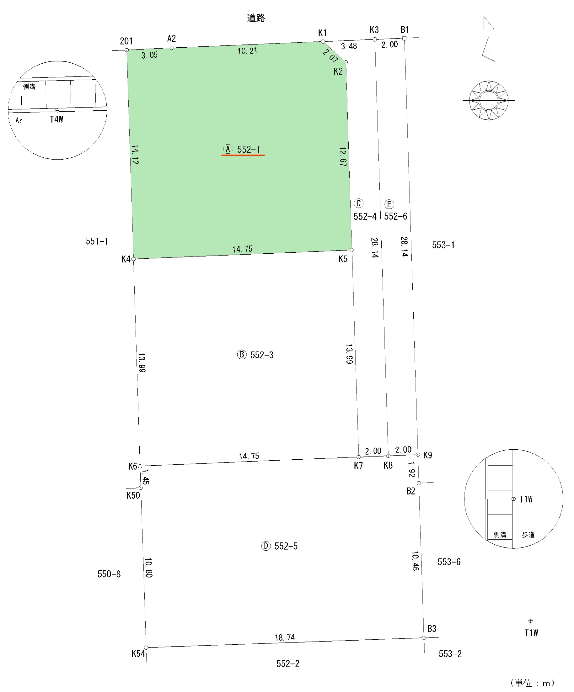
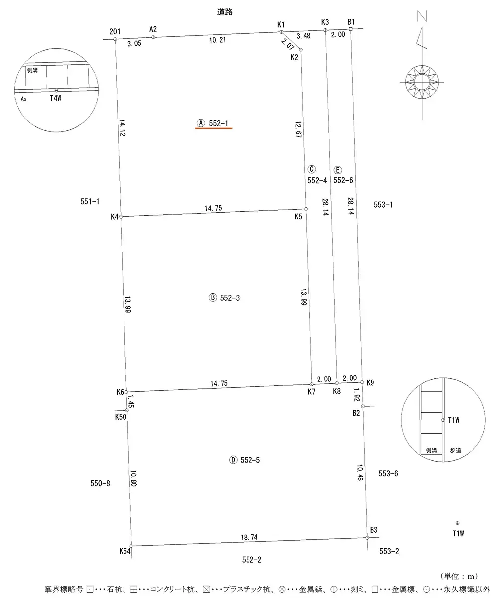
区画図
全体区画図
建築イメージ:配置図
建築イメージ:平面図(2階)
建築イメージ:平面図(1階)
建築イメージ
※パースはイメージです。
建築イメージ
※パースはイメージです。
クスリのアオキ上西郷店まで138m
カインズ掛川店まで395m
セブンイレブン掛川上西郷店まで317m
静鉄掛川ショッピングセンターSプラザまで340m
掛川市立西郷小学校まで1855m

おすすめポイント

穏やかな雰囲気が漂う街並みで便利なエリア!
◆ 徒歩圏内にスーパーやコンビニがあり、日々の買い物もスムーズ
◆ 掛川市立北中学校まで徒歩5分、幼保園も近く子育て世代に嬉しい環境
◆ JR「掛川」駅までバス9分、小市バス停から徒歩3分で通勤・通学も便利
◆ クスリのアオキやカインズも近く、日用品の買い物にも困らない

所在地

静岡県掛川市上西郷552-1

返済例

販売価格1,450万円

■頭金/0万円■借入金/1,450万円■借入期間/35年■元利均等払い■変動金利/0.675%■静岡ろうきん

  • 毎月の返済例(元本1,450万円)

    月々38,772

  • ボーナス月の返済例

    0

提携ローンなし お好きな金融機関で借りられます。※詳しくは係員までお問い合わせください。

物件概要

物件(分譲)名
掛川市上西郷分譲 土地のみ
販売価格
1450万円
所在地
静岡県掛川市上西郷552-1
交通
JR東海道本線「掛川」バス9分小市徒歩3分
掛川バス「小市」徒歩3分
小・中学校
掛川市立西郷小学校
土地面積
207.56㎡(62.78坪)
区画数
販売区画1区画
前面道路
北4.5m幅(接道幅13.5m)
飲水・排水
公営水道
宅建業法33条に規定する許可番号
完成済み
用途地域
2種住居
地目
宅地
土地権利
所有権
建ぺい率
60%
容積率
200%
私道負担
引渡日
相談
建築条件付
建築条件有り
特記事項
景観法による規制有、敷地面積最低限度有、最低敷地面積200㎡以上 法22条区域
水道引き込み済
取引態様
売主

情報更新日:2026/05/06  次回更新予定日:2026/05/20

お問い合わせ

お気軽にご連絡ください。

住まいづくり館 浜松

053-424-7260
受付時間:
10:00~18:30
住所:
静岡県浜松市中央区篠ケ瀬町496

CONTACTお問い合わせ

ご相談やご質問等がございましたら、
お気軽に下記フォームよりお問い合わせください。

    お名前を入力してください。

    フリガナを入力してください。

    電話番号を入力してください。

    メールアドレスを入力してください。

    - ※郵便番号入力で住所の一部が自動で入力されます。

    郵便番号を入力してください。

    住所を入力してください。

    番地・マンション名を入力してください。

    ご年齢を選択してください。

    選択してください。

    同意する場合は選択してください。

    宅地・建売分譲一覧に戻る