建売分譲

塩尻市大門三番町

販売価格3360万円

完成予想図(外観)
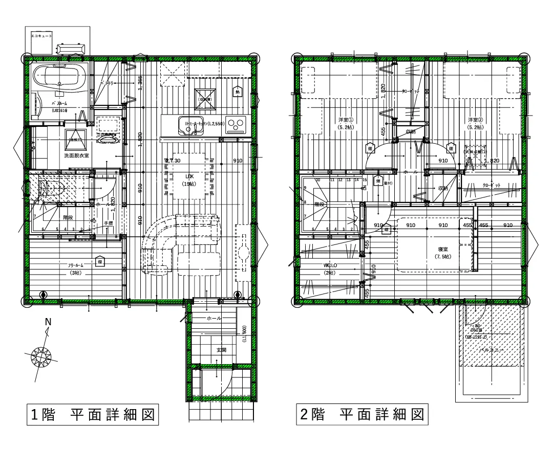
3360万円、3LDK、土地面積159.95㎡、建物面積90.25㎡

おすすめポイント

徒歩圏内に塩尻駅・商業施設がある好立地!
●塩尻駅徒歩14分の好立地
さらに塩尻西小学校まで徒歩6分で子育て世代におすすめ。車2台分の駐車スペースもあります。

●夏は涼しく冬は暖かい。高気密・高断熱性能で家計にも優しい
高い気密性と断熱性により、一年を通して室内を快適な温度に保ちます。

所在地

長野県塩尻市大門三番町674番11

物件概要

物件(分譲)名
塩尻市大門三番町
販売価格
3360万円
所在地
長野県塩尻市大門三番町674番11
交通
JR中央線「塩尻」徒歩14分
小・中学校
塩尻西小学校
塩尻中学校
土地面積
159.95㎡(48.38坪)
建物面積(延床)
90.25㎡(27.30坪)
構造
木造2階建
間取り
3LDK
設備概要
オール電化
区画数
販売区画数1区画 総区画数1区画
前面道路
南4m幅(接道幅9.3m)
飲水・排水
公営水道、本下水
用途地域
1種住居
地目
-
土地権利
所有権
建ぺい率
60%
容積率
200%
私道負担
工事完了予定年月(造成・開発等)
2026年4月
引渡日
相談
特記事項
準防火地域、景観条例
取引態様
売主
建築確認番号
第24NJM-10-01741号
駐車場
カースペース

情報更新日:2026/05/04  次回更新予定日:2026/05/18

お問い合わせ

お気軽にご連絡ください。

住まいづくり館 松本

0263-87-8850
受付時間:
10:00~18:30
住所:
長野県松本市平田東一丁目28番16号

CONTACTお問い合わせ

ご相談やご質問等がございましたら、
お気軽に下記フォームよりお問い合わせください。

    お名前を入力してください。

    フリガナを入力してください。

    電話番号を入力してください。

    メールアドレスを入力してください。

    - ※郵便番号入力で住所の一部が自動で入力されます。

    郵便番号を入力してください。

    住所を入力してください。

    番地・マンション名を入力してください。

    ご年齢を選択してください。

    選択してください。

    同意する場合は選択してください。

    宅地・建売分譲一覧に戻る