建売分譲

諏訪市高島三丁目

販売価格3900万円

完成予想図(外観)
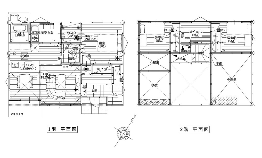
3900万円、3LDK、土地面積233.45㎡、建物面積99.05㎡

おすすめポイント

平屋風2階建。諏訪湖花火もよく見える!教育施設・公園など利便性のある住環境
広々とした敷地面積70坪以上で、諏訪湖ヨットハーバーまで徒歩約6分。
3LDK+パントリー+スタディルーム+SCL+WICLO 平屋風2階建。
全室LED照明。

●夏は涼しく冬は暖かい。高気密・高断熱性能で家計にも優しい
高い気密性と断熱性により、一年を通して室内を快適な温度に保ちます。

所在地

長野県諏訪市高島3-1397番4

物件概要

物件(分譲)名
諏訪市高島三丁目
販売価格
3900万円
所在地
長野県諏訪市高島3-1397番4
交通
JR中央線「上諏訪」徒歩25分
小・中学校
城南小学校
諏訪中学校
土地面積
233.45㎡(70.61坪)
建物面積(延床)
99.05㎡(29.96坪)
構造
木造2階建
間取り
3LDK
設備概要
オール電化
区画数
販売区画数1区画 総区画数1区画
前面道路
東4.8m幅(接道幅2.1m)
飲水・排水
公営水道、本下水
用途地域
準工業
地目
-
土地権利
所有権
建ぺい率
60%
容積率
200%
私道負担
工事完了予定年月(造成・開発等)
2026年4月
引渡日
相談
特記事項
法第22条区域、景観条例
取引態様
売主
建築確認番号
第24NJM-10-01736号
駐車場
カースペース

情報更新日:2026/05/04  次回更新予定日:2026/05/18

お問い合わせ

お気軽にご連絡ください。

住まいづくり館 松本

0263-87-8850
受付時間:
10:00~18:30
住所:
長野県松本市平田東一丁目28番16号

CONTACTお問い合わせ

ご相談やご質問等がございましたら、
お気軽に下記フォームよりお問い合わせください。

    お名前を入力してください。

    フリガナを入力してください。

    電話番号を入力してください。

    メールアドレスを入力してください。

    - ※郵便番号入力で住所の一部が自動で入力されます。

    郵便番号を入力してください。

    住所を入力してください。

    番地・マンション名を入力してください。

    ご年齢を選択してください。

    選択してください。

    同意する場合は選択してください。

    宅地・建売分譲一覧に戻る